63 VARNEY POINT ROAD RIGHT, Gilford, NH
Price:
$5,500,000
Bedrooms:
6
Taxes:
$18,190
Total Baths:
7
Type:
Single Family
Sq. Feet:
5165
Address:
Remarks:
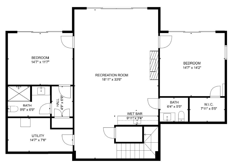
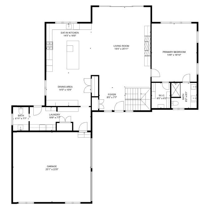
NEW CONSTRUCTION on LAKE WINNIPESAUKEE with sweeping views looking out over Smith Cove and the Broads beyond! Thoughtfully designed and custom-built to check all the boxes - 6 bedrooms to include 5 king suites (one of which is a first-floor primary) and a massive bunk room! There are 5 full and 2 half baths, along with approx 5,165sqft of elevated living spaces! The kitchen showcases custom cabinetry, quartz countertops, Sub-Zero and Wolf appliances, and panoramic lake views-flowing seamlessly into the dramatic two-story great room where floor-to-ceiling windows frame the water, and a soaring stone fireplace creates a warm and inviting focal point. Additional highlights include a walkout lower-level with a guest suite, private office, stylish bar and wine cellar! Enjoy two laundry rooms, large mudroom, and an oversized garage prepped for heat! Only premium materials were utilized- Marvin windows, Everlast and cedar siding, Boston blend stone, custom doors, high efficiency systems, spray foam insulation, and designer-selected fixtures. Enjoy 1,500sqft of decking, porch and patio, a firepit area, extra parking and grassy areas for the kids! A beautiful beach and a no wake zone ensure safe swimming, kayaking and paddle boarding! The boathouse offers docking in and out for up to three boats, oversized barn doors on three sides, and a combo of nickel gap and pine finishes inside! LOCATION- 5 minutes to the Pavillion, 20 min to Rte 93 in Tilton, and 60 min to Rte 95 in Portsmouth!
This property offered by Jamieson Duston of Duston Leddy Real Estate. Cell: 603-365-5848
Property Features
Property Information
Request More Info
Type:
Single Family
Year Built:
2025
Lot Size:
0.29 acres
Road Frontage:
Yes
Total Rooms:
12
Full Baths:
7
Bedrooms:
6
Half Baths:
2
Square Footage:
5165
School District:
Gilford Sch District SAU #73
Copyright ©2025 PrimeMLS, Inc. All rights reserved. This information is deemed reliable, but not guaranteed. The data relating to real estate displayed on this display comes in part from the IDX Program of PrimeMLS. The information being provided is for consumers' personal, noncommercial use and may not be used for any purpose other than to identify prospective properties consumers may be interested in purchasing. Data last updated 12/15/2025 3:00:32 AM

